Features
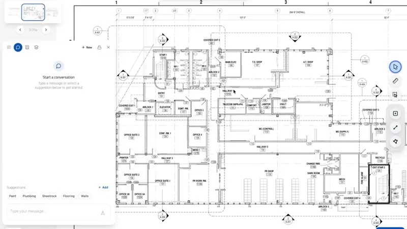
We extract data from blueprints allowing you to focus on decisions, not measurements
Advanced AI transforms complex drawings into actionable construction insights



Benefits
Skip Measurements
Analyze Instantly
Make Decisions
Events
Come say Hello!
We love meeting face-to-face. Discover our latest innovations, share insights, and explore opportunities to collaborate. Check the schedule below to see where you can find us next.
Transform for Success
Leverage our technology to turn your plans into intelligence, guide decisions, and secure success










.jpg)


.png)